NEWS ARCHIVE 2021


Memorial Hall: Results of Survey

Hello to everyone in Cropwell Bishop.

You may be aware that members of the Memorial Hall Committee have been working hard to carry out a general survey of the village to gain reaction to the proposal of either:

A: repair to the old Hall or
B: build a new facility.

The reason this survey has been carried out is that a previous hand poll taken at the AGM held in September (attended by only 33 people) was not so well received by a number of the residents attending the meeting.

It was felt that due to the notification of the meeting being predominantly electronic, this may have precluded some villagers, and therefore not a true representation of the potential attendees.

The elected Committee then decided in a formal meeting held immediately after the AGM that in order to address this shortfall it would be more realistic to take a door-to-door approach. With this in mind, the Committee produced a document that was distributed to every household along with the Cropwell News to give the whole village the opportunity to take part.

A full door-to-door collection took place on Sat 18th & Sun 19th Dec and the returning envelopes opened and counted. There was an opportunity for anyone we missed to place their envelope in the Red post box at the Old School up to the evening of Tues 21st Dec. Hopefully we have collected all the returns from the villagers who feel that they would like to have some involvement in responding to this important issue.

So here we are, the survey is complete and the 'options letters' collected, counted and kindly verified by Tony Jarrow.

Just before I give you the result, I want to say a few words about the historical significance of this decision.

In the mid-1920s, residents of this little village made a decision to find a huge sum of money, nearly £1,300. Back then this could have built a row of houses but it was put into building the Memorial Hall. We have a list of the contributors, we have the name of the contractor who was given the job of building the Hall and it shows that the unemployed were used for doing the laboring.

I have learned a lot about the history of the Hall and who did what, where, when, and how. What comes across is the passion for this project and why it was necessary.

The key features of remembrance in the village were to be in two parts, first was a window in the church and second a community space for people to meet. It was out of this decision the Hall came into being and a drawing from 1925 shows the first attempt at a design.

The first Committee is listed made up of many families who are still represented within the village today. There are two important aspects to this place and they are its purpose and its history.

The original purpose was as a Memorial to the tragic loss of men from the village during WW1, 1914 - 1918. The other important feature of the building is the community that has used it. It represents so many memories of happy events that whatever decision has been made will mean partial or complete loss of the link to these happy events.

This has always been uppermost in the minds of the committee during the past couple of years and in particular the last few months. It is not a decision taken lightly, there has been and is a lot of heartache over this by all concerned.

This brings me to the announcement of the figures for the survey.

We delivered to every household a copy of the letter with the option of Repair or Rebuild. This was sent out inside the Parish Newsletter which is distributed to every household and was verified by the delivery team.

As many of you are aware the collection was carried out by members of the committee and some wonderful volunteers along with Santa on the 18th and 19th of December. Also, by request via the Bulletin Board on Facebook, the postbox at the Old School was made available as a drop-off point.

Out of the Letters sent out to 830 households, we had a return of 274 letters (33%).

Out of these, some were incorrectly filled out and some returned without either option selected, these will be termed as “other” for counting purposes only. There were also some added notes which will be saved and brought forward at later meetings when appropriate.

What was made very clear from many written comments is that material from the old building could possibly be incorporated into some feature or part of the new building that is subsequently decided upon.

We would like to point out that this return is within the usual parameters of this style of polling and in no way is a disappointing number.

The returns were as follows:

Option 1 to repair/refurbish 30 (11.8%)

Option 2 to demolish/rebuild 225 (88.2%)

The “other” returns 19 (6.9%)

I hope those that have very clear links to the old Hall, will see in a new design some physical elements that will be visible or can be touched so a clear connection can be drawn from the original building.

We have a clear path now to achieve something that a previous generation achieved nearly 100 years ago. Also, it is an opportunity to attempt a centenary memorial gathering that can be held inside a new facility by 2029 if the community gets fully behind this project.

My thanks go out to all the committee who have worked to ensure this survey took place, the team of deliverers who deliver the Parish Newsletter, the cooperation of the Parish Clerk, volunteers who stepped forward to help, and then of course you the residents of Cropwell Bishop.

We only set out to collect the 'option letter' on the 18th and 19th but in addition to this, your generosity produced a wonderful total of £367.18 which is a great way to kick things off for 2022!

A Merry Christmas to everyone and here's to an exciting 2022.


David Whisson

Chairman: Memorial Hall Committee


Cropwell Bishop's Sparkle of Hope for 2022

Xmas lights
Xmas lights
Xmas lights
Xmas lights
Xmas lights
Xmas lights
Xmas lights
Xmas lights
Xmas lights
Xmas lights
Xmas lights
Xmas lights
Xmas lights
Xmas lights
Xmas lights
Xmas lights
Xmas lights
Xmas lights
Xmas lights
Xmas lights
Xmas lights

Tony Jarrow


Get Vaccinated Now

xmas tree

NHS Nottingham and Notts, has published a "Special Vaccination Bulletin".

It contains full details of the various vaccines available (1st, 2nd & booster) and advice for people in different age groups (including children) and with different conditions (including pregnancy).

To view the bulletin, click:

NHS Nottm COVID-19: Special Bulletin


Tony Jarrow


Gamston Roundabout Works

Major roadworks, of all kinds, are planned to begin on the 10th January at the Gamston Roundabout junction of the A52 – and they will continue for the whole of 2022.

Download full details of what to expect by clicking:

Gamston Roundabout Improvements


Tony Jarrow


Cropwell Bishop Singers: Looking to the Future

The last performance of Cropwell Bishop Singers was in December 2019 when they gave a Christmas Concert at the Old School Cropwell Bishop.

Since then the world has been turned on its head by a pandemic which has caused singing groups all over the world and those who enjoy listening to them to take stock and decide what the future might look like for them and their supporters.

Cropwell Bishop Singers have now done that. With that in mind a group of singers led by its Committee have met to try and get a feel for what the future for a community choir in this part of The Vale might look like.

With hope (certainly not borne out of expectation) they have resolved to put their thoughts out there to see if we can rise to meet the challenge of providing a worthwhile hobby and interest for some and an entertainment for others which might serve to lift the gloom and help us get back to what folk in this area are good at - putting smiles on faces and giving huge enjoyment to singers and audiences alike.

Within its extensive library of sheet music, all owned and paid for by the group, with its state of the art keyboard and a core of enthusiastic members, the group has, it believes, the building blocks in place ready to start re-forming the Cropwell Bishop Singers after such a lengthy lay off.

Before this happens though there are challenges to be met. What it needs for lift-off however is new members, a new musical director and an accompanist.

Derek Tabron, our wonderful choir leader who took up his baton in 2009 to help out for a short time, has decided that after a ‘temporary’ stint of 12 years, that the time is right to finally put it down and to give someone else the opportunity to move the group forward.

Our long serving accompanist Dorothy had retired in 2019 making way for Tony Hall, who many of you know. Tony, who made it clear that he would take the role on for just a couple of years has now said that he would like to make way for someone new to take that on.

We therefore need to reach out hoping that from within our communities, or even from slightly further afield we can encourage anyone interested to come forward and talk through with the committee a basis for taking on these two vital roles. Any such conversations would be on a no obligation/no expectation basis. We are very open to how we might fill them.

If you see yourself as someone who has the sort of talent to help bring singing and concerts back in to our communities please get in touch. Any enquiries will, of course, be treated in the strictest confidence.

Equally, if you are someone who feels inspired to sing along with a group of other like minded people and you’re not sure what it would involve or what musical skills you might need, again please get in touch.

We would add that whilst previous experience of group singing or a smattering of musical knowledge helps it is certainly not essential; indeed, some of our finest voices arrived at our door having never before having read a note of music in their lives!

Thanks for taking the time to read about our hopes and plans - you will be made very welcome.


(This article was written by a member of the Singers, who says that, for more details, you can contact Linda on: 07483 861100.)


Dudley Moore at The Old School!

Dudley Moore

Well, not Dudley Moore himself, sadly, but his music is going to be played by a live band at The Old School in February.

Click on the Events tab to find out more.


Tony Jarrow


Jumping for Joy – with Santa

If you are looking to do something very different this Christmas, why not contact Laura Hampton at Langar Airfield: laura.hampton@skydivelangar.co.uk

Your neighbours could share your thrill by watching you from their back garden (with binoculars).

Will this photo inspire you?


Tony Jarrow

Sky Dive

Lincoln University needs Help from Special Women

Volunteers

St Giles Cancellations

In consultation with service leaders we have taken the decision to cancel the Crib and Carol Services at St Giles' on Christmas Eve. This is with much regret, but mindful of rising numbers of covid cases, large congregations likely, and impractability of managing numbers at this late stage.

The Christmas morning Family Holy Communion Service at 10.00am will continue as planned.


St Giles Church


An Opportunity to Remember

xmas tree
Photo by Mel Stanley

The Parish Council have left some wooden baubles and pens in a box at the base of the Christmas tree on the pinfold.

If anyone would like to go along and do a memory bauble or decorate one and put on the tree, then please do so.


Jan Towndrow
Parish Clerk


The Memorial Hall 'Options Letter' Collection!

Dear Cropwell Bishop,


This coming weekend will see a special guest visiting the streets around the village.

Santa will be coming to see if you have been naughty or nice and say hello to you all. He is asking all Mums and Dads to have the 'options letter' ready for his helpers to collect.

There will be some sweets available for children so please ask Santa or his helpers if you would like some.

Santa will be setting off on Saturday the 18th at 4 pm from:

  • The Maltings, then to:
  • Church Street,
  • Squires Close,
  • Springfield Close,
  • Thurlby Close,
  • Cropwell Butler Road,
  • Hardy's Close,
  • Etheldene,
  • Shelton Gardens,
  • Barlows Close,
  • Hoe View Road,
  • Parkin Close,
  • Cooper Close,
  • Brownhill Close,
  • Marshall Road,
  • Mercia Ave,
  • Clarke Close,
  • Hoe Nook.

Then again on Sunday the 19th also at 4 pm, until his reindeer get tired and hungry, from:

  • The Maltings, then to:
  • Church Street,
  • St Giles Way,
  • Smiths Close,
  • Kendal Road,
  • Newberry Close,
  • Hall Drive,
  • Salvin Close,
  • Stackyard Close,
  • Kerrs Walk,
  • Stockwell Lane,
  • Dobbin Close,
  • Fern Road,
  • Nottingham Road,
  • Barratt Close,
  • Richards Close,
  • Field Lane,
  • Old Lenton Close,
  • Kinoulton Road,
  • Colston Road.

Don't worry if you miss him and still want to send the option letter in, the Red Letterbox at the Old School is still receiving these on a daily basis. Please use this method if you miss Santa.

Ho Ho Ho from the whole Memorial Hall Committee who wish you all a Very Merry Christmas!


David Whisson
(Chairman of the Memorial Hall Committee)


Celebrate Cropwell Bishop's Past

The Cropwell Bishop Heritage Group have items for sale and this is the time of year when you might want to treat someone – or even yourself.

You can buy them from Anne Terzza.

Contact her on: 0115 9893147.


Tony Jarrow



Heritage goods
Heritage goods

Target Reached!

This it the final update of the Cropwell Bishop, St.Giles Church Collection, for Refugees.

We have reached our targets.

Thank you so much for your food commodities for the refugees arriving in Nottingham. We have donated some 116.7kg covering 275 items to Nottingham Refugee Forum during the 7 weeks of our appeal.

Our targets of 100kg and 250 items have been surpassed. We shall, for the time being, cease our collections. That said, many people have benefitted from your generosity and will continue to be in need.

So, donations via the link below, would be hugely valued.

Bring any donations to reception at NNRF or email Gemma at:

gemma.pillay@nottsrefugeeforum.org.uk


Thank you again Cropwell Bishop.


Peter Hills


Firework Photos – Full Size

If you have already received a copy of the latest edition of Cropwell Bishop News, you will have seen a picture of the fireworks on its front cover.

A reader has asked for a copy of this photo – one that is suitable for printing. You can always print photos from the website but they will not be of high quality because I only publish small-file-size versions to enable fast downloads.

Nevertheless, I have now made it possible for you to download a full-size copy of the 'CB News cover photo' (and two other similar ones).

Just click on any of these three photos and you will be taken to the full-size version, which you can save onto your computer.

Please note that you will only benefit from the larger file size if you are viewing the photo on a large screen or printing it.


Tony Jarrow

Fireworks photo 1

Fireworks photo 2


Fireworks photo 3


The 'old Co-op' becomes a New Shop

It has been a bit of a wait, but the building that used to be Cropwell Bishop's Co-op has now opened as a new 'convenience store'.

It opened yesterday although a few things need to be done on the outside – its name will appear on the front of the building later this week.

As you will see from the photos, it is selling a wide range of goods.

It will be open from 7am to 8am every day except Sunday, when it will be open from 8am to 8pm.

I can't remember us having so many shelves of goods on sale in the village. Go and see our new shop for yourself.


Tony Jarrow




Old Co-op shop
Old Co-op shop
Old Co-op shop
Old Co-op shop
Old Co-op shop
Old Co-op shop
Old Co-op shop
Old Co-op shop
Old Co-op shop
Old Co-op shop

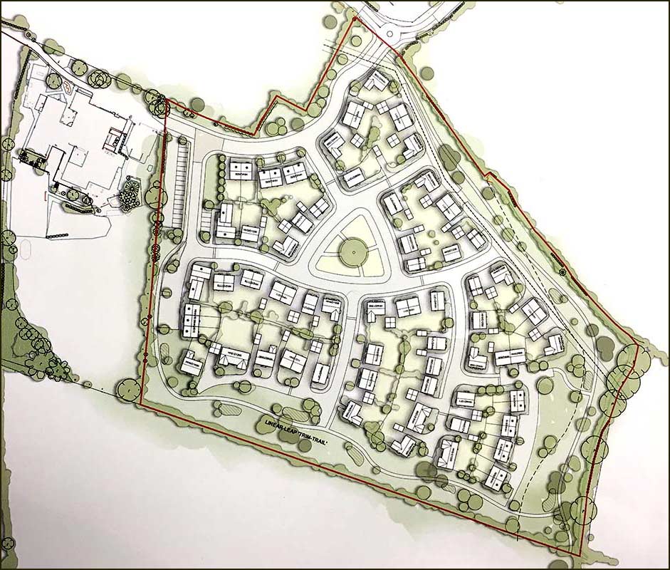
Are you Shopping for a New Home?

Sales Office
Photo by Colin Bryan

Bloor Homes have now opened their Sales Office at the entrance to their building site on Church Street. I am told that it will be open every day except Tuesdays and Wednesdays.

You can view the homes online on the Bloor website – and see their prices.


Tony Jarrow


Mission Accomplished - Shoebox Appeal

Shoe Box

A big thank you to all those who filled shoeboxes with gifts and knitted hats and mittens for extremely poor children and dropped them off at St Giles’ or one of the other churches in the nearby villages.

Through your generosity we were able to send a grand total of 56 boxes off to Eastern Europe.

Special thanks go to the Youth Club members who together filled 6 boxes.

The gifts will make the children happy but will also show that somebody cares for them.


Vivien Hall


Cropwell Bishop – our place on this Earth

Cropwell Bishop
Cropwell Bishop
Cropwell Bishop


Thanks to Colin Bryan for the photos.


Home Truths – according to the birds

It won't be long before Cropwell Bishop folk are able to explore the new houses growing up in this corner of the village – just for the fun of it!


Tony Jarrow (thanks to Colin Bryan for the photos)


Houses
Houses

Wood you believe it!

You may remember a recent story sent in by Max Jordan.

He explained that he endeavours to raise funds for St Giles Church by recycling used wood e.g. pallets, as timber suitable for wood burners, open fires etc.

With this in mind, he approached the builidng contractors at the Bloor Homes site in the village and, as a result, he now takes delivery of a mini-skip of timber offcuts every week.


Wood

Villagers have been collecting wood from Max while wood continues to be delivered to him.

At the momnent, he has quite a stockpile, but he would hate to see the contractors simply send the wood to landfill.

So, if you require firewood for fuel, please contact him.

As Treasurer of St Giles Church, he is able to accept any donations that people may wish to make when collecting the wood. They will help to fund the church.

His contact details are:

Max Jordan
1A Thurlby Close
Tel: 0115 989 9299

As you can see from the photos, he currently has quite a lot of firewood and offcuts available.


Tony Jarrow


Wood

Yellow Lines Appear on Several Roads Here Today!

Yellow Lines
Yellow Lines
Yellow Lines


Photos by Mel Stanley


Out of Place?

Do you feel safe walking to the shops? Should lorries this big be in the village?

This photograph was taken from outside the Co-op on Nottingham Road by Mel Stanley yesterday. It is not known if the truck was making a delivery to the village.


Tony Jarrow

Truck

Do you know the way to Spike Island?

If not, there is one sure way to find out: click on the Walks tab and choose 'Spike Island'.


Tony Jarrow


School Days in Cropwell Bishop – 50 Years Ago

A question for older readers: what were you doing on the evening of May 15th 1971?

I feel certain than none of you have any idea.

But I am pretty sure I know what Jean Toon, of Hoe View Road, was doing.

She was looking at page 16 of the South Notts Advertiser newspaper and probably had a broad smile on her face as she studied the pictures.

The page was filled with a story about Cropwell Bishop Primary School. It included several photos of the children and, amongst them were her own, and many of their friends.

Today, 50 years later, quite a number of these ‘children’ still live in Cropwell Bishop and so do some of their parents – including, of course, Jean Toon.

Some children are named, but I am fairly confident that their photographs will not betray them today!

When Jean came across a copy of this page that she had safely put away 50 years ago in an Argos carrier bag, she decided to pass it on to me. Now you too can savour those times.

Other news items in the paper include; one by a local Tory MP reassuring voters that 'the British way of life' would be unchanged if we joined the Common Market (now EU). And another describing the opposition of 2400 Radcliffe-on-Trent residents to the building of the proposed A52 bypass.

How times have changed.


Tony Jarrow




Advertiser


Advertiser
Advertiser
Advertiser
Advertiser
Advertiser
Advertiser
Advertiser

Dr Alex Macdonald 1960–2021

Alex Macdonald

The Macdonald family would like to thank everyone in Cropwell Bishop for the many gestures of kindness since Alex passed away.

The funeral will be held in Cropwell Bishop on:
Monday 15th November at 2pm.

Due to the size of the church and the need for Covid precautions, the church service and reception are by invitation only. However, there are other ways that you can pay your respects.

Your options are as follows:

  1. The funeral service will be broadcast online so you can watch from your home. Details are available at: https://alexmacdonald.muchloved.com/

  2. There will be speakers broadcasting the funeral outside the church in Cropwell Bishop.
    The funeral cortege will make a circuit of Cotgrave and then arrive in Cropwell via Nottingham Road from about 1:30pm.
    You are welcome to stand in the churchyard or on the streets during the funeral. Please maintain social distancing. If you come anywhere near the church, please turn your mobile completely off (not just silent or aeroplane mode) to avoid disruption of the live-streaming.

  3. A donation page has been set up on: https://alexmacdonald.muchloved.com/ for Alex's chosen charities, but please don’t feel under any pressure to donate.

Thank you.


Sue Macdonald


Alex Macdonald – Photos from the Archives

Alex Macdonald
2019-May.
Pop Quiz at The Old School.
Alex Macdonald
2014-November.
In the Village Show in The Old School.
Alex Macdonald
2014-November.
Village Show.
Alex Macdonald
2014-November.
Grand finale at the Village Show.
Alex Macdonald
2014 - March.
Helping on 'Gift Day' at St Giles Church.
Alex Macdonald
2012 - July.
He sometimes had to wear two hats at the Teddy Bear Parachute Jump at St Giles Church.
Alex Macdonald
2012 - July.
At these events, all his patients were furry.
Alex Macdonald
2011 - September.
Giving expert advice at a Frog Race in the Memorial Hall.
Alex Macdonald
2011 - July.
Facing unique medical demands at the Teddy Parachutes Jump.
Alex Macdonald
2011 - April.
Celebrating a Royal Wedding.at The Old School.
Alex Macdonald
2010 - October.
Receiving a trophy for his team's win of the Quiz at The Old School.
Alex Macdonald
2007 - July.
Picnic in the Park on the Memorial Hall field.

Cropwell Bishop's Fireworks Night

We missed it last year, but this evening Cropwell Bishop Parish Council gave us the chance to safely come together again and enjoy its Firework Display. And it was all for free. The weather was kind to us and it was a great evening for everyone on the Memorial Hall Field – and those watching from their home in the village.

Thanks Parish Council.


Tony Jarrow


Fireworks
The Parish Council had promised to give all children a bag of sweet treats. They had already bagged them up, now they had to deliver – and they did.
Fireworks
Children queuing for their treats.
Fireworks
The beacon was lit: it would not be long now.
Fireworks
Everyone was ready.
Fireworks
It was a dark, moonless night, in a few moments the spotlights would be dimmed.
Fireworks
Then the fireworks took over the night sky of Cropwell Bishop.
Fireworks
Fireworks
Fireworks
Fireworks
Fireworks
Fireworks
Fireworks
Fireworks
Fireworks
Fireworks
And then, the stars took over the sky again, just as they have been doing for billions of years.

St Giles Church update

St Giles’ Church is available to all, of whatever faith or denomination, or indeed people very unsure of faith at all but who welcome the peace found within these ancient walls.


St Giles

Since the last report there have been a few changes, so here’s a brief update.


Firstly ...
The church is now open every day: 9am – 4pm weekdays, and 10am – 4pm at weekends.


Secondly ...
On Wednesdays;

  • ‘Coffee, Cake and Chat’ (or CCC), is running regularly from 10am, offering a warm welcome and delicious cake free of charge.
  • Toys are available if parents/carers would like to bring babies or pre-school children with them.
  • Bellringing Beginners runs at the same time, so please pop in and have a go, with no obligation to continue if (like me!) your arms, eyes and brain are not on the same wavelength.

The church choir is also hoping to welcome new members. Rehearsals are on Thursdays at 7.30pm – ring Hilary (details below) if you’d like to know more.

St Giles’ is hosting church services once or twice a month, but there is always one somewhere in the wider Parish.

Looking ahead to the Christmas season, we expect to have the usual Crib Service, Carol Service and Christmas Day All Age Holy Communion Services at St Giles’.

Unfortunately, Rector Rachel has had a set-back in her health and is on sick leave for a period of three months.

However, thanks to the efforts of lay people and our retired clergy, you can see that the life and worship of the church carries on - and reaches out to others, particularly at the moment through the Shoebox Appeal ‘Love in a box’ and the support of the Nottingham Refugee Forum.

Further details and regular updates are available on www.wivertoninthevale.co.uk so please do check it out.

Notices may also be read in the church porch, and I am happy to be contacted if you have further questions via: 0115 9894836 or email:
hilary.tabron@wivertoninthevale.co.uk


Hilary Tabron (Church Warden)


St Giles

Beyond the Dirty Duck

As the growing season comes to an end, many gardeners will be thinking about clearing away brown leaves and digging up flower beds and veg plots ready for next year. But, before the clocks go back and the evenings darken, now is the time to enjoy the wild countryside around us.

Maybe this is what was in mind of our Growers & Gardeners Club when it invited members to go on a 3 mile walk along the most scenic stretch of the Grantham Canal. It is just 25 minutes away near Woolsthorpe By Belvoir.

On a Saturday morning, during half-term holidays, many members have commitments elsewhere, but a few with time on their hands enjoyed the opportunity to see the Canal at its best.

They started from the Rutland Arms Pub – better known as the Dirty Duck. These photos show you what is 'beyond the Dirty Duck'.

Will you find the time to enjoy these views for real in the coming week?

Thanks to Pam Wregg for organising the walk.


Tony Jarrow


Dirty Duck Walk
Dirty Duck Walk
Dirty Duck Walk
Dirty Duck Walk
Dirty Duck Walk
Dirty Duck Walk
Dirty Duck Walk
Dirty Duck Walk
Dirty Duck Walk
Dirty Duck Walk
Dirty Duck Walk
Dirty Duck Walk
Dirty Duck Walk
Dirty Duck Walk
Dirty Duck Walk
Dirty Duck Walk
Dirty Duck Walk
Dirty Duck Walk
Dirty Duck Walk
Dirty Duck Walk

He is Returning for Halloween!

Billie

Those of you who remember the days of Billie the Bear during the lockdown months, will be thrilled (particularly the children) to discover that Billie plans to make a Spooky appearance this Halloween weekend.


Billie

He will be lurking outside his home at the bottom of Brownhill Close.

His 'Mum', who tries to keep track of his moves (which, as all parents of bears will know, is not always easy) has managed to sneak out these photos of what he has in store.

Spooky – but nice!


Tony Jarrow


Billie

Allotment Fruit Theft

A thief (or thieves) has targeted the Cropwell Bishop Allotment site in the last few days.

Hundreds of ripe pears and apples have been taken. The theft has been reported to the Police.

On one plot, 3 trees were stripped of virtually all their fruit.


Pears
These pears are all that remained from one tree.

The Allotment Committee are awaiting reports from other plot holders.

This is not the work of some children 'scrumping'. The weight of the takings is so large that a car or van must have been used. It would seem the aim of the theft was to make money.


Pears
The pears are large.

Have you been offered, either free, or for sale, pears like these in the last few days? Were they from an unknown person or irregular source?

You may contact me (0115 9893178) if you have any information; I can pass it on to the Police.

No photographs are available of the other variety of pear (more rounded and browner) or the apples.

Thank you.


Tony Jarrow


Awaiting Roof Tiles

This new view of the housing development off Church Street suggests that it will not be long before the first homes have a roof. Then, the effort will be made to prepare one or two as show houses. Accrording to the advertising, this will be in 2021.


Tony Jarrow (thanks to Colin Bryan for the photo)


Houses

A Day in the Life of a Sub-Station

SubStation
This morning a lorry arrived at the place where I have been living for the last few months.
I don't think people like me being here behind Newberry Close; they wish I was somewhere else.
SubStation
I wonder what that crane is going to lift.
SubStation
Oh, its me!. I wonder where they are taking me.
SubStation
Now I am safely on the back of the lorry. Hope I am not going far. I really would like to help the people of Cropwell Bishop.
SubStation
A short time later and here I am – just over a 100 metres away, beyond the bottom of Marshall Road.
I can't see many houses from here, and they can't see me: maybe that's' just as well.
SubStation
The nice men are connecting me up. I am looking forward to a quiet future.
I am sure I will be able to help Cropwell Bishop people just as well from here.


Tony Jarrow (thanks to Colin Bryan and Pam Wakefield for their photos)


Church Bells this morning

Did you enjoy hearing the church bells ringing out on this lovely sunny day? I know that many did, including people living in Cropwell Butler where they could also be heard.

I had assumed that there was a wedding taking place and thought how lucky they were with the weather.

However, I have since learnt that there wasn't a wedding: it was a meeting of the Bingham and District Bellringing Guild organised by our Colin Bryan.

There were 17 people from 8 different churches here and it was the first "ring" for some of them since the Covid lockdown.

It sounded like they were bursting with musical energy.

Colin told me that there is a nationwide shortage of ringers. Many have not returned, either through age or for health reasons, and there continues to be a poor take-up by younger people.

Nevertheless, Colin is still running the Wednesday morning beginner-sessions at St Giles Church in the hope of adding a few new "ringers" to his team. Like he says, it is nice to hear the bells – and they are real bells, not digital recordings.

Tony Jarrow


church bells
Bell ringers listen to their colleages pulling the bell-ropes in the tower gallery behind. A pity you can't hear what they are hearing.

Drama for Tots at the Old School - starting 4th Nov

Dramatots


Path Games

Path Games
Path Games
Path Games


A46 Northbound – Resurfacing for 4 months with overnight diversions

At Highways England, we believe in a connected country, and our network makes these connections happen. In the East Midlands, we strive to improve our major roads and motorways, to keep people moving today and better tomorrow.

I’m writing to let you know that we’ll be continuing our timetable of essential carriageway maintenance work to the A46, between the M1 at Leicester and the A57 Carholme Roundabout at Lincoln that started on 12 July 2021.

What work will you be carrying out?

We’ll resurface sections of the carriageway and some of the slip roads, refresh road markings and renew road studs. Once completed, all road users will benefit from improved road safety and a smoother carriageway.

To minimise disruption to the local community and road users we plan to deliver our scheme in phases, working overnight while the road is less busy, Monday to Friday between 8pm and 6am excluding Bank Holidays. This will also ensure that our road network is as free-flowing as possible during the day as the carriageways will remain open outside of our working hours.

When will the work take place?

Our next phase of work is planned to start on Friday 30 July 2021 and is scheduled for completion by early-November 2021. To maintain a safe environment for our workforce and customers we will need to close various sections of the A46, along with the adjoining exit and entry slips.

As the dates for each phase are confirmed we will notify you although they may be subject to change.

During the closures we’ll put in place a diversion route which we’ve agreed with the Local Authority.

Maintaining safety during Covid-19

All our sites have strict safeguarding measures, in line with Public Health England guidance, to prevent the spread of COVID-19 and none of our sites are open to the public. All projects are closely monitored, and the situation is kept under constant review.

Contact us

If you have any queries about this work on behalf of your community, please contact the Public Liaison Officer, Karen Reeve, as follows:

• Email: EMADcomms@kier.co.uk
Alternatively, you can also keep up to date directly by contacting our Highways England Customer Contact Centre as follows:
• Email: info@highwaysengland.co.uk
• Telephone: 0300 123 5000
• Twitter: @HighwaysEMIDS

Yours faithfully,

Matthew Carruthers
East Midlands Operations Directorate
Highways England


Warning – an incident yesterday in Cropwell Bishop

A Warning posted by a Cropwell Bishop resident .......


"I wanted post this following an incident that happened yesterday.

A young boy approached my mums house yesterday around 5pm/6pm. He gestured to her asking if he could come and talk to her.

My mum, thinking he had lost his football, let him through the side gate.

We are staying with my mum for a while so he actually encountered my wife not my mum.

When asked what he wanted he said in good English with no obvious accent.

“My grandma has got cancer and she needs some medicine, so can I have a pound for her medicine”.

When asked where his grandma lived he was vague just “down the road” and gestured into the village.

I stepped outside to join my wife as she gave him the advice of; if Grandma needed medication then family should go and see her doctor. He then made his way off back from the direction he came.

He appeared unescorted with no adult supervision.

Whether he was on his own, egged on by his peers. Or worryingly part of a larger scam to "case houses" to later steal from.

Please be aware.

Dark nights are coming so lock doors earlier.

We think he was around 9-11 years old and of white ethnicity.

Has light brown hair almost blond; a little unkempt.

He had a light chequered jacked/coat on.

Jogging trousers which were tucked into his green coloured socks and dirty light coloured trainers.

This is just to make people aware and for others to ensure they look after the more vulnerable members of your community."


NB

The Parish Clerk has contacted the Police and they have advised:

"Please contact any relatives/friends or vulnerable in the village to make them aware this potential scam is taking place in the village.

If approached, do not engage or hand over any money and contact the police. In an emergency situation 999, or the non-emergency 101."


Beware of COVID pass fraud

Over recent months there has been a significant increase in scams relating to the COVID Pass to steal money, financial details and personal information from members of the public.

Scammers are sending imitation text messages and emails as well as making fake phone calls posing as members of the NHS to offer fake vaccine certificates for sale online and through social media.

Remember that the NHS App is free. The NHS COVID Pass is free. The NHS will never ask for payment or any financial details.


Cropwell Bishop Parish Council


Covid alert

Cropwell Bishop's First

New roundabout

Cropwell Bishop now has a roundabout on Church Street, the first roundabout in the village itself, although The Turn in front of the church had a 'virtual' one for centuries.

It looks like the young cyclists know how to use it – the orange triangles and big white arrows are a guide for everyone.

However, the second photo suggests that some car drivers are going to struggle with the concept. We better not put flowers in the middle just yet.


Tony Jarrow (thanks to Colin Bryan for the photos)


New roundabout

Want Leaves?

If any one wants any fallen leaves as mulch please contact me and we will arrange to leave some accessible.

Janice Towndrow
Parish Council Clerk
Tel: 0115 989 4656


Dove Cottage

Dove Cottage Club


Thank you for the firewood Bloor Homes: anybody want some?

My name is Max Jordan and for many years I have been raising funds for St Giles Church.

One of my endeavours is to recycle used wood e.g. pallets, as timber suitable for wood burners, open fires etc I provide cut timber and also kindling.

I recently had a conversation with the contractors at Cropwell Meadows and told them I process scrap wood into firewood with all proceeds going to St Giles Church.

Since that time, contractors deliver a mini-skip to my drive each Friday – full of timber offcuts. They remove the empty skip on Monday.

Thank you Bloor Homes for this environmentally-friendly act.

If you require firewood for fuel, then please contact me.

As Treasurer of St Giles Church, I am able to accept any donations that people may wish to make when collecting firewood. They will help to fund the church.

Thank you.

Max Jordan
1A Thurlby Close
Tel: 0115 989 9299


The House Building Has Begun

New roundabout
Are these the show houses that are being built?
New roundabout
Even toy trucks are not as brightly coloured as the ones being used here.
New roundabout
I think it is safe to assume that the roundabout here will not not be big enough for flowers!

Thanks to Colin Bryan for the photos.


Street Stories

The series of Street Stories has now come to an end. However, every one of them can be found on the Heritage page and that is where they will remain.

Once the new housing development has been completed there will be new street names in Cropwell Bishop – and that will mean additional Street Stories will appear. Can't wait!

To see all published Street Stories, click the 'Heritage' tab on the right (with mobile phones rotate screen into horizontal position or click the 'More' tab).


Tony Jarrow

Blue logo

Open-Day at the Allotments

Today, the Cropwell Bishop Allotments were open to the public.

Last week, the site was busier than normal as members appeared to be making an extra effort to tidy their plots for today's viewing.

At 4pm, the viewing ended, and those members who were still on site, relaxed at the site's Communitiy Plot. There may well have been a drink or two consumed to help them enjoy the moment!

You can view additional photos from the day by going to the Allotment page – just click its tab.


Tony Jarrow


Open Day
Open Day
Open Day
Open Day
Open Day
Open Day
Open Day
Open Day
Open Day
Open Day
Open Day
Open Day

Went for a walk

Some members of our Growers & Gardeners Club took time out of their own gardens today, and strode out on a circular 3 mile walk in the tiny village of Goady Marwood. It is in Leicestershire but just 20 minutes from here.

They used up some of their energy but were able to restore it at the end of the walk at Goady Marwood village hall were tea and cake were available. This was not put on just for our benefit, but was a fund-raising event to help pay for a new roof for their church.

This is the second time they have had to replace the roof this year. New lead roofing had been put on the church, but 3 weeks later it was stolen! Its replacement is steel.

Here are some photos of our Gardening Club's afternoon adventure.


Tony Jarrow


Goady Marwood
Goady Marwood
Goady Marwood
Goady Marwood
Goady Marwood
Goady Marwood
Goady Marwood
Goady Marwood
Goady Marwood
Goady Marwood

Roundabout Here ...

New roundabout

Workers were creating a new bend in the road to the new housing development at the end of Church Street today.
I wonder what it will look like when finished: do you think there will be flowers in the middle?!

Thanks to Colin Bryan for the photo.


Substations in the Village: Western Power Explain

The installation of two new substations on Hoe View Road & behind Newberry close, are all part of a network reinforcement scheme to improve the distribution system for Cropwell Bishop as part of our obligations as distribution operator.

There are multiple contributing factors, having been assessed by our design engineer, to reach the solution – such as balancing the network, fault restoration timescales, network configuration to enable back feeding, and existing apparatus is aging/inaccessible.

As part of the reinforcement to connect these substations, the cable lay involved along the highway will be the routes shown on the outline plans below.

All excavation and reinstatement will be carried out by our contractors, Network Plus.

At present, having spoken to the technician coordinating the scheme, dates are to be confirmed, but is anticipated July/August.


Heather Pynegar
Western Power


(Thanks to Councillor Colin Bryan for obtaining this information)



Cable map

Cable map

A Better Bus Service: Have Your Say

Nottinghamshire County Council will soon be drafting a Bus Service Improvement Plan (BSIP) for Nottinghamshire and Nottingham, in collaboration with the county’s bus operators.

This stems from the government’s recently published National Bus Strategy (called ‘Bus Back Better’), which requires all English local transport authorities to work with bus operators to come up with bold plans for improving their local bus services and encouraging more people to use them.

Government has pledged £3 billion in funding across the country to help deliver these plans, and Nottinghamshire and Nottingham are aiming to secure a fair share of that funding.

As an important input to the plan, Notts CC want to find out what people think would improve local bus services and what would make them use local buses more. They are keen to hear from people who already use buses and from those who currently don’t.

They also want to hear from public, private and voluntary organisations who have an interest in making our bus services work better.

You can make your views known by taking part in its online survey which you can access by clicking the link below:

Bus service improvement plan survey.

In addition, the County Council are planning to host an online Drop In session at 2pm on Tuesday 24th August providing stakeholders with an opportunity to reflect on the issues in more detail; any Parish Council that responds to this survey will be invited to attend.

Your views will help us shape our plan, so thank you for taking the time to complete the survey.


Regards


Elliott Mizen

Facilities & Partnerships Manager
Nottinghamshire County Council


Memorial Hall AGM

Memorial Hall AGM

Memorial Hall Survey

Memorial Hall

The July edition of Cropwell Bishop News has been printed and will arrive through your letterbox in the next week few days.

In it, there is an article about the future of our Memorial Hall: this was referred to in the website article that appeared on 12/7/21.

If you can't wait for your copy of Cropwell Bishop News to arrive, the article about the Memorial Hall is reproduced below.


Cropwell Bishop Memorial Hall needs your help

Your Village, Your Hall – Have your say

You will have noticed that the Hall has been closed for some months because after many years of community use and service, the Hall is now in need of significant structural repair. We have been forced to close because the insurance company will not provide indemnity for any incidents directly attributable to the structural defects identified by the Consulting Structural Engineers.

The Hall was built by the people of the village to commemorate those who fell in the Great War 1914-1918. It consequently has a very significant place in the heart of the village and is much loved by the residents. When it was built it was done so with the materials and technology available at the time, which has now left the building significantly structurally compromised and in need of significant repair, refurbishment and upgrading. Over the last 20 years a number of surveys have been carried out on the Hall and these have consistently highlighted that it was approaching the end of its life. Unfortunately, this point has now been reached, and we must now decide upon its future.

Following receipt of the most recent report from the Consulting Structural Engineer, we engaged Pulse, a firm of Chartered Surveyors & Chartered Project Managers, to undertake a Feasibility Study into possible options available to the committee. The findings of the Feasibility Study point to two possible courses of action:

Option 1:

• Carry out all essential repairs to the Hall (which stands at 236 sq m), to enable us to open again, with or without subsequent refurbishment and upgrading to meet current standards.

• The repair and full refurbishment costs are estimated to be £537,000 plus VAT and fees.

• For Cost / Benefit analysis assuming a 15-year lifespan cost is approximately £42,960 per year.

This Option has significant issues, as highlighted in Pulses’ Feasibility Study.

• High level of risk, due to the difficulty in quantifying the precise nature and scope of the works until the building is opened up, and that the true extent of the structural problems may only become evident at this point so we should therefore prepare for very significant additional costs.

• Such repair works will potentially only add another possible 15 years to the projected lifespan of the Hall.

• Raising funds for this option would be problematic, particularly with regards to the anticipated lifespan of the building. The Structural Reports (2004, 2013 & 2019) and the Pulse Feasibility Study (2020) will be available to view on the Cropwell Village Plan web site (www.cropwellbishopplan.co.uk) from 16th July 2021.

Option 2:

• Raise funds towards a rebuild, for a larger Hall of 495 sq m, which is also significantly expensive.

• The budget cost for a new hall would be approximately £1,416,288. As a new build it is assumed VAT will be zero rated.

• For Cost / Benefit analysis, assuming a 60-year lifespan (as estimated by Pulse), cost is approximately £23,605 per year.

• The Pulse Feasibility Study states that funding sources for a new build are more plentiful and will be a more attractive proposition to potential funders; and the building use would be optimised by a bespoke layout.

The Pulse Feasibility Study (2020) will be available to view on the Cropwell Village Plan web site (www.cropwellbishopplan.co.uk) from 16th July 2021.


Feedback:

Should you wish to comment in writing please reply, by email or post, to either of the contacts below:


Cllr. M. Beazley, 11 Cropwell Butler Road, Cropwell Bishop. NG12 3DD
Mrs C. Herrington, 10 Newberry Close, Cropwell Bishop. NG12 3DY

email: consultationmemorialhall@gmail.com


Please also note all replies to be received by 1800 hours on:

15th of August 2021

• Please ensure that you include your full name and address on all replies.

• This consultation is only open to residents of Cropwell Bishop who are registered to vote and whose names appear on the current Register of Electors.

• All anonymous replies and replies from people outside the village will be disregarded.

Reg Charity Nos 220504/220504-1


Mick Beazley

Chair of Memorial Hall Committee


Note:

The Feasibility Study and Structural Reports referred to in the article, can be viewed or downloaded by clicking the links below:.

Feasibility Study

Structural Report 2004

Structural Report 2013

Structural Report 2020


One step at a time ...

Drone photo of house building
This lorry is sucking out the old Church Street drain. Not sure what it found.
Drone photo of house building
When will building begin, I wonder.

Thanks to Colin Bryan for the photos.


Saturday Cafe Guidelines

1. Hand sanitizers will be stationed at the entrance to the Old School so please use these. These facilities are also available in the toilets and kitchen.

2. A track and trace sheet and QR code card will be left on each table for you to enter your contact details and we will be checking to ensure that everyone has completed this.

3. Please wear a face mask (if possible) until you are seated at your table. There will be waitress service as usual. When you leave your table it's probably best to replace your mask.

4. The one-way system is still in use in the Old School so enter by the automatic door on the left-hand side of the building and exit through the back door.

If the weather is still good, we may be able to have a few tables set up on the lawn.

I'm sure you will agree that adhering to the suggestions above is a small price to pay for the opportunity of getting together once again after this dreadful episode in all our lives.

Let's hope this is the first of many more such occasions to come.


Look forward to seeing you next Saturday.


See poster in 'Events'.


Children's Path Games Questionnaire

Your Opinion Matters!

Which is why the questionnaire is quick to complete with only 10 short questions and is completely anonymous. The questionnaire can be found online at: https://tinyurl.com/ynrnhxeh (click here).

The closing date is 20 August 2021.

The Parish Council is seeking the views of Cropwell Bishop residents (aged 18 and over) to see if there is community support to create trails, hop-scotch and other simple/traditional path games for young children on several of the public pathways which intersect the green amenity space at the back of Cooper, Brownhill and Newberry Closes.

This could make a fun children’s activity space without being intrusive to the residents whose properties border this green space.

This short video was posted to social media and is attached as an indication of what the Parish Council has in mind, click here.

Your views will be included with other considerations such as permissions and funding before the Parish Council makes its decision whether to go ahead or not with the project.

Questionnaire Information

If you are happy to take part in further research on this topic, then please include your contact details at the end.

If you have any questions, email Jan Towndrow, the Parish Clerk or call the parish office: 0115 9894656.

A questionnaire and interview participant information sheet can be found by clicking here and the interview participant consent found by clicking here.

Questionnaire results and non-identifiable quotes from interviews will be published to the Parish Council website click here, the Parish Plan website click here and in the Cropwell Bishop News.


Cropwell Bishop Memorial Hall Survey

Memorial Hall

The July edition of Cropwell Bishop News is about to be printed and will arrive through your letterbox in the next week or so.

In it, there is an article about the future of our Memorial Hall and a request for feedback from Cropwell Bishop residents.

The article makes reference to a Feasibility Study and several Structural Reports.

Whilst it is not possible to supply printed versions of these documents, you can view or download copies by clicking the links below:

Feasibility Study

Structural Report 2004

Structural Report 2013

Structural Report 2020


The article provides contact details for making comments and, for your convenience, they are reproduced below:


Cllr. M. Beazley, 11 Cropwell Butler Road, Cropwell Bishop. NG12 3DD
Mrs C. Herrington, 10 Newberry Close, Cropwell Bishop. NG12 3DY
email: consultationmemorialhall@gmail.com


Memorial Hall
photo by Colin Bryan



The layout is becoming clearer ...

Drone photo of house building

Thanks to Colin Bryan for the photos.

Drone photo of house building

This is where we Live: Cropwell Bishop

Drone photo of Cropwell Bishop
Drone photo of Cropwell Bishop
Drone photo of Cropwell Bishop

Thanks to Colin Bryan for the photos.


Cropwell Bishop News — Publication Soon

Covid stopped so much happening in the village, but now there is cautious optimism in the air.

Plans are afoot to restart publishing "Cropwell Bishop News" in the early summer: the first issue is already being put together.

Now is the time for anyone who wants to include an article, notice or advert, to send it to Janice Towndrow at the Old School.

Remember, a copy of the newsletter is delivered through the letterbox of every household in Cropwell Bishop, so it is the best way to keep everyone informed of what has happened, and what is going to happen.

Contact details:
clerk@cropwellbishop-pc.gov.uk


Tony Jarrow


Jubilee Gardens

The beds in the Jubilee Garden between the church and Old School have been replanted – a task that was planned and completed by a team of village volunteers.

The geraniums and begonias, were lovingly cared for by Sue Ward over the winter and brought on in her greenhouse.

Ed and Sue spent half a day preparing the trough outside the church, removing the large cordyline which had grown too big. A much bigger task than they first thought.

The flower beds had to be cleared of their winter plantings and new liners and compost put into baskets. This was done by Pam Wregg Sue Ward and Natalie Pearson.

Plants had to be purchased – and they had to fit the chosen theme for 2021. This involved a half-day at the nurseries. Even then, they needed bringing-on in the greenhouse.

On planting-day, many hands make light work, and the volunteers were: Natalie Pearson, Pam Wregg, Pauline Tweedale, Mel Stanley, Eilleen Hepworth, Irene Skerritt, Judy Thomas, Eddie Ward and Sue Ward.

To complete the job, new turf was laid to replace the old weed-ridden grass, and this was organised by Parish Cerk, Jan Towndrow.

The volunteers are now on a watering rota for the rest of summer.

The more people who sit in, and enjoy the garden, the happier these volunteers will be.



flower planting
flower planting
flower planting
flower planting
flower planting
flower planting

Licensing Application for the Old Co-op Site: 14 Church Street

Cllr. Moore has done some investigations on our behalf this morning regarding the licensing notice that has gone up at the old Co-op site on Church Street.

It would appear that the change of use to a café/office is no longer going ahead but has been sold on or rented on to a company Esha News.

As yet no planning application has been made for change of use to a shop, but it would more than likely be passed as there was a retail unit there before.

The previous planning application had strict opening times attached to the planning application of 8am to 6pm Monday to Friday and 9am to 6pm Saturday and Sunday.

This licence application is from 6am till 11pm daily, however, this will currently be overridden by the existing planning permission in place. This does not mean they cannot apply for the licence but that they cannot currently operate outside of the times currently in place on the planning permission given for the site.

If you have any queries/concerns regarding the licencing application, please contact: licensing@rushcliffe.gov.uk.


Janice Towndrow
Parish Clerk


Be a Parish Councillor?

Councillor advert

A Road Appears

Building works

Thanks to Colin Bryan for the photo.


House Building Update

Building works
Building works

Thanks to Colin Bryan for the photos.


Cropwell Bishop Allotments Presentation

On Saturday 8th May 2021, keeping within Covid-19 guidelines and social distancing, a presentation was made to Tony Jarrow the outgoing Chairman of the Cropwell Bishop Allotment Committee.


Allotment Presentation

The presentation was made on site during what can only be described as inclement weather!

Amanda Parkinson (Chair) along with Sue Shuttleworth (Membership Secretary), Sarah Gladman Bell (Treasurer) Jan Walker and John Hallam (Committee members), presented Tony with a "thank you" for his dedication and participation.

From starting the Cropwell Bishop Allotment Group, as well as being the chairman for the last 11 years, Tony has contributed to building the group to a successful village resource with – hopefully – many more years of growing and enjoyment from the facilities we have.


Cropwell Bishop Allotment Committee



Allotment Presentation

Allotment Presentation

Allotment Presentation

NOTICE OF VACANCY IN OFFICE OF COUNCILLOR

PARISH OF CROPWELL BISHOP

NOTICE IS HEREBY GIVEN

Pursuant to section 87(2) of the Local Government Act 1972 that due to the resignation of Philip Storer, a vacancy has arisen in the Office of Councillor for the Parish Council.

If by 26 May, 2021 (14 days after the date of this notice) a request for an election to fill said vacancy is made in writing to the Returning Officer at the address below by TEN electors from within the parish, an election will be held to fill the said vacancy, otherwise the vacancy will be filled by co-option.

If an election is called, it will take place not later than 29 July, 2021.


Dated 5 May, 2021

Katherine Marriott
Returning Officer
Rushcliffe Borough Council
Rushcliffe Arena
Rugby Road
West Bridgford
Nottingham
NG2 7YG


Cropwell Bishop Parish Council: 2021 Chairman’s Annual Report

I start my report by reflecting on the fact that in the second decade of the 21st century we face a pandemic that at first seemed like a fourteenth century plague, with nearly everything shut down and all of us called upon to help those who have been affected by it.

The pandemic has shown us the best in the people in our community. We saw a Coronavirus Volunteer Group quickly set up and established at the beginning of the first lockdown with over 40 volunteers supporting our isolating and vulnerable residents.

The volunteers did shopping, gardening, dog walking and befriending, often just being there for a chat to those lonely and vulnerable residents. This volunteer group undoubtedly helped lift people through the pandemic.

Secondly and further into the first lockdown we saw the start of the Community Food Bank. The food bank was run by the Parish Clerk Janice Towndrow and Carol Halpin, together with a group of volunteer delivery teams. The village once again rallied; monetary donations were made and lots of food was and is still being donated to this wonderful scheme.

In 2020 Cropwell Bishop Parish Council welcomed a new Co-opted council member, a local man Jacques Lacey who has a strong family relationship with the village dating back to his Great Grandfather an agricultural worker and his Grandfather a Gypsum Miner.

We also said a sad farewell to Howard Kendall, a former member of the Parish Council and the first organiser of the Nottingham City Festival who passed away in December 2020 at the age of 94 after a long illness.

Parish Council Meetings


Like all life during this pandemic, the Parish Council have not been able to meet in person as a group and have become accustomed to ‘ZOOM’ meetings which have seemed to work very well.

Town & Parish Conferences


Cllrs have ‘attended’ these conferences via the use of ‘ZOOM’ and have found them constructive. Recent conferences have concentrated mainly on new building throughout the Borough, however the most recent conference made us more conscious of the problem of single use plastics, so we decided as a Parish Council we should join the Borough in its campaign to reduce single use plastics in our community.

The Environment


The main issue facing the Parish Council is the number of new applications to build in the Green Belt. Unfortunately, our well thought out arguments put forward in these objections are being ignored by Borough’s Planning Officers.

A major concession we have managed to win from the Borough planners is that in future Hedgehog Highways must now be provided in all planning applications. At the January 2021 Parish Council meeting the Clerk confirmed a Hedgehog Highway will be included as part of the new development off Church Street.

We have recently seen the start of a new Cropwell Bishop Litter-picking Group. This group are focusing on litter-picking in the areas our Village Ranger/Lengthsman is not able to target. I have to say it is making a huge difference to how the entrances and surrounding areas to our village look. It is also stopping the plastics and waste affecting our wildlife. The group is doing a great job.

New Co-op and Car Parking Problems


Rushcliffe BC and the Parish Council opposed the building of the new Co-op on the Wheatsheaf car park, arguing that this would cause major traffic problems, which have now come to fruition, causing some anger and a lot of distress to residents living in the area. The Parish Council and several residents have been in constant contact with the Officers at Notts CC who are continuing to work on a suitable traffic calming scheme for Cropwell Bishop to address all the issues.

Policing


Police Constable Caroline Voce will once again try and organise the monthly beat surgeries once the current restrictions are lifted.

Community Events/Schemes/Socialising


The Entertainments Committee have not been able to meet or run events due to the pandemic which has also seen the closure of the Youth Club and the Scouts for the present time. As soon as they are able, they will resume these events with the correct safety procedures in place to move forward.

The Parish Council took the decision that once again we would not run Picnic in the Park due to the pandemic and the uncertainty of when restrictions would be fully lifted. The Parish Council would like to try to organise some form of celebration later in the year to help lift spirits.

Other groups such as the Community Road Safety Scheme, Saturday Café and Cropwell Lunch Club have also not been able to run during the pandemic, However, they are all looking to resume as soon as restrictions allow.

Following the reorganisation of the Gardening Club we now have the Cropwell Bishop Growers & Gardeners who were set to meet once a month at the Old School. This and the Annual Village Show has also been affected by the pandemic, but they are looking to resume in September.

Old School Jubilee Gardens


These gardens have been tended over the last year by a group of volunteers, some of whom are members of the Growers & Gardeners club. They have done an excellent job planting, weeding, and watering to keep the gardens looking spectacular for our residents to take pleasure in. I invite all our village residents to come and sit a while in The Old School gardens and enjoy the flowers and surroundings at any time.

Play Equipment


The Parish Council has been looking at what to put in place at the old Skate Park site at the playing fields and the idea is to put a Petanque (Bools pit) in this area.

Memorial Hall


All of you may now be aware that the Memorial Hall building is fenced off. A report from committee member Chris Keast, was made via the March 2021 Parish Council meeting and a copy of those minutes are available on the Parish Council website for you all to read.

In brief:
Mr. Keast had advised that several surveys had been done over the years which gave a limited life span of the building without substantial works being carried out. The Parish Council had paid for a survey done in 2013 by Principal Surveyors, which concluded in the medium-term, that they should either look for a new building or carry out extensive works. The report detailed medium terms as being 5 to 10 years which is where we are now.

In February, the Parish Council released funds held in trust for the Memorial Hall to engage PULSE CONSULTANTS to do a feasibility study and cost estimates for a refurbishment or demolition and rebuild.

Those Estimates are: Refurbishment £537k which would give the building a further life span of 15 years. Demolish and Rebuild: £1.4million which would give a new build a life span of 60 years.

No decision has been made at the time of writing this report.

Acknowledgments:


Parish Councillors


John Greenwood for his continued campaign for improved bus services. Notts County Councillor Neil Clarke & Borough Councillor Gordon Moore whose financial help continued advice and support make so many things achievable.

Gary Jowett


For ensuring the village had supplies through the pandemic which were hard to find in the supermarkets and his support in supplying goods for the Food Bank.

Russell Price


For his financial support of the food bank.

Jubilee Gardening Group


My thanks to Sue and Eddie Ward, Julie Pooley, Glyn Greewood, Pam Wregg, Irene Skerratt, Eileen Hepworth, Maggie Shirran and Natalie Pearson for the hard work and time put in to making the Jubilee Gardens looking spectacular.

Ray Kimpton


Our Village Ranger for continuing to keep the appearance and cleanliness of the village his priority throughout the pandemic, despite the increased duties that the Lengthmans Scheme has brought about.

Tony Jarrow


For the village Website, and with the help of Anne Terzza having brought the village history to all during the pandemic.

Darrel Towndrow


Who continues to keep our IT up to date, the Website Compliant and who continues to be a big help to me when I need his expertise.

Parish Clerk


My thanks to our Parish Clerk, Janice Towndrow, who has kept the Parish Council running efficiently during the pandemic. Together with Carol Halpin the Clerk has contributed so many hours to organise, collect and distribute goods to the Food Bank to our village people so severely affected by this pandemic.


Finally, and most importantly this year, my special thanks to the great people of Cropwell Bishop who have given freely of their time to make a success of the Coronavirus Support Group and the Food Bank during this awful time.

There are too many to thank individually but each person involved has my sincere thanks. It is truly heart-warming to see that when we find ourselves in real need, our community pulls together to help each other through.


Alan Wilson,
Chairman.



Looking down on the action

This is the scene today at the house-building site. Offices and toilets are arriving and pipes are stacked up.
We are going to have to get used to lorries moving up and down our roads for long time ahead.

Thanks to Colin Bryan for the photo.

Building works

Work on the new-housing development begins

House building work begins
House building work begins

Covid Community Help

I would like to take this opportunity to thank each and every member of our community who has given freely of their time over the last 15 months as a volunteer to this group, those who have donated to the food bank and our group of volunteer drivers delivering food and hot meals.

It is wonderful to see our community coming together to support each other in times of need.


Janice Towndrow - Parish Clerk
On Behalf of all the Team


Food Bank notice

Co-op Contact

Community

Lisa Newbold is the new Co-op Member Pioneer for Cropwell Bishop Co-op.

As part of Lisa’s role, she connects local groups and causes, and individuals, with one another to help and support each other in the local community.

Lisa also advises groups on how to apply for the Co-op’s Local Cause Funding amongst other things.

It would be really helpful if Lisa could create a list of local groups so she can get in contact with you to hopefully work together.

Lisa would be grateful if you would contact her via email at lisa.newbold@coop.co.uk with:
• The name of your group
• A brief description of what you do
• Your contact details – name, email address and phone number

Thank you in advance


Cropwell Bishop Co-op

Advice Centre re-opening

Advice Centre

Slowly but surely

Perimeter fencing

Step by step, the new housing development in the village is progressing.

Colin Bryan was walking the adjoining footpath this morning and took this photo of the perimeter fencing that is being erected.


Tony Jarrow


Got large unwanted items?

Streetwise large-item collection

Residents can now make bookings for large unwanted items direct through our partners, Streetwise, on their new website (the existing channel on our website continues for this service too).

Collections are normally made on Saturdays and residents can choose a suitable date when enquiring.

To visit the Streetwise website, click: Streetwise


Rushcliffe Borough Council


Want a part-time job in the village?

Parsnip & Pears

At the Parsnip and Pears business in Cropwell Bishop, we are currently hiring for a couple of positions here in the village.

We are looking for people to join us as soon as possible.


JOB 1

Van Delivery Driver.
We are looking for a part-time van delivery driver for Fridays and Saturdays.
Must be over 25 years old for insurance purposes with a valid UK driving license.


JOB 2

Member of our packing team.
We are looking for someone to join our packing team on Thursdays.
Must be physically fit as the role includes some heavy lifting and being on your feet all day.



APPLY

Call: 0115 822 8622
or email: lorna@parsnipsandpears.co.uk


Parsnips and Pears
(The Cropwell Veg Box)


St Giles as seen from The Heavens

On the day that NASA made history by flying a small helicopter on the surface of Mars, Colin Bryan made history in Cropwell Bishop by doing the equivalent (at village level) by flying a drone from the top of St Giles church tower.

In both cases, the pictures are amazing: below are three beamed down from Colin's tiny craft. They show the church as it has never been seen before. Except by the rooks, swifts, buzzards and bees – but they didn't have a camera.


Tony Jarrow


Drone photo over St Giles
Drone photo over St Giles
Drone photo over St Giles


Litter Pickers — we shouldn't need them

Most of you will have caught sight of people, heads down, with black bin bags in Cropwell Bishop.

Maybe you saw them on the pavements, in hedgerows or down ditches — or on footpaths and along the canal.

They shouldn't be there, they shouldn't be needed. But they are because people deliberately leave their litter there or toss it from their car as they pass through.

Litter picking is not a thankless task, the people of Cropwell Bishop are thankful. At least 99% are, the other 1% are dropping the litter and hanging dog-poo bags on bushes (you can imagine what happens when the hedge trimming machine comes along!).

If you see someone leaving litter, report them to Rushcliffe Borough Council, they will take care of their prosecution.

Meanwhile, a big thanks to the litter pickers.


Tony Jarrow



Defibrillator

Defibrillator

Defibrillator

Defibrillator

Defibrillator


Photos by Mel Stanley, who says:

"Please check out Cropwell Bishop Litter Picking FB page. More help needed to keep our hedgerows, verges and green lanes free of litter, and protect our small, local wild life."



Attend Parish Meeting - from your Home

For the first time in over a year, there is a poster on the Events page of the website.

It tells you how to attend the Parish Council's Annual Meeting without you having to step outside your door — using your computer/tablet/mobile phone.

Click on the Events tab for more details.


Tony Jarrow


Looking Down on the New Housing Site

Colin Bryan was out today taking photos of the site for new housing in the village.

There are strange markings on the ground. Is there a connection between them and the plan for housing? You decide.


Tony Jarrow


Drone photo of new housing site
Drone photo of new housing site
Drone photo of new housing site

Choose Your Co-op Charity: Cropwell Bishop Community Arts

If are a Co-op member, and you haven’t already selected your "chosen charity", we would love to invite you to select the:

Cropwell Bishop Community arts project lead by Friends of Cropwell Bishop school for 2021/22

This project will help us raise funds to run an arts project and festival for our school and local community.


Coop

The project focuses on mental health and wellbeing and will involve music, drama and art specialists working with our school and local community.

The funding window runs for an entire year, we therefore hope to raise enough money to run the project in the 2021/22 academic year.

How it works:

If you are already a Co-op member then each time you shop and buy selected Co-op branded products and services, a percentage of the cost is given to a charity.

As a Co-op member you can select which charity you want to support. We therefore hope that you will choose FOS!

The FOS cause profile page is here:

https://membership.coop.co.uk/causes/52678

If you are not already a member of Co-op but would like to join, then you can join here online at:

coop.co.uk/membership

or by downloading the Co-op app.


Thank you very much for your support.


Friends of School
Cropwell Bishop Primary School


It's this evening, Tuesday ...


Annual Parish Meeting

This annual meeting is for everyone in Cropwell Bishop.
For full details, see the poster on the Events page of this website, but for a link to the meeting, read below ....

Using your computer, tablet or mobile phone, simply click the link below 5 minutes, or so, before the meeting at 7pm on Tuesday:

Join the Annual Parish Meeting on Zoom

If you haven't used Zoom before, click on it now and it will provide a link for installing Zoom on your device now. It doesn't cost anything.

It will not take you to the meeting of course (until Tuesday evening) but your device will be all set to go.


Janice Towndrow
Parish Clerk

Do you know this Mushroom?

I like looking for wild Mushrooms/Fungi for cooking and frequently come across some that I am not too sure about. I wondered if there are any likeminded foragers that could recognise the attached pics ?

They appear to be possibly Wood Blewitts, but it is quite early for these and they smell slightly of ammonia and not the usual fragrance associated with Blewitts. Size of this one is about 100mm cap.

If you do recognise this one, please contact me.

Thank you

Jacques Lacey
Phone: 0777 288 4709


Mushroom

Mushroom


School Midday Supervisor


School job

Birds-Eye Views of Us


Drone photo

Drone photo

Thanks to Ricky James for these photos taken after the recent snow.

Tony Jarrow

Second Defibrillator in Village

Cropwell Bishop now has new Defibrillator in the telephone box on Church Street in the centre of the village.

The Defibrillator has been donated to the village by the 1st Cropwell Bishop Scout Group from their share of the proceeds from the Stilton Stumble.

There will be an official handover from the Scouts to the Village when we are able to do so.

The instructions on how to use the Defibrillator are on display inside the kiosk for anyone in an emergency to use.


Janice Towndrow – Parish Clerk


Defibrillator

Defibrillator


Photos by Colin Bryan


Snow and Sun Create Village Wonderland

Snow and Sun scene
Snow and Sun scene
Snow and Sun scene
Snow and Sun scene
Snow and Sun scene
Snow and Sun scene
Snow and Sun scene
Snow and Sun scene
Snow and Sun scene
Snow and Sun scene

We Still Need Your Help


poster

Tree on Church Street Felled


Tree felling


This morning, workmen were felling this tree on Church Street.

This is the first step in preparing for the building of new homes on the adjacent land. There will be a roundabout at this corner and a road onto the new estate.


Photo by Colin Bryan

3-Tonne Fly-Tip Beside Our Canal

Rushcliffe Borough Council is appealing for information from members of the public after fly-tipping was found blighting a rural walking spot.


Fly Tip

Three tonnes of bricks, rubble and other waste was found by the authority on February 14 at a car park adjacent to the Grantham Canal near Cropwell Butler at a location popular for walkers.

The news follows the Council partnering with Waste Investigations Support and Enforcement (WISE) earlier this year that has seen a significant rise in the number of fines issued for those fly-tipping, dog fouling and littering across the Borough.

Incidents have been investigated, leading to over 300 fines being issued.

However, the authority is still keen to receive information on anyone who witnessed the fly-tip or saw vehicles in the area on February 13 or 14 and would encourage reporting of any other fly-tipping in the Borough at:

https://bit.ly/3rUE4rt

The webpage includes a facility to pinpoint the location of the fly-tip on a map which can help the Council locate items and aid their swift removal.

The Council’s Cabinet Portfolio Holder for Neighbourhoods Cllr Rob Inglis said: "Incidents like this generate much anger in our Community. I find it utterly deplorable that a small minority of people consider it is acceptable to dump rubbish and waste in our wonderful countryside.

“Offenders show a total disregard to our environment, our residents and to those having to clear it up, especially not knowing what hazards may lie within.

“It either falls upon us all, or just an innocent landowner to foot the bill for each occurrence. “I appeal for anyone who recognises the source of the waste in this incident to please let us know by calling:

0115 981 9911

or via our website:

www.rushcliffe.gov.uk


“Rushcliffe's partnership with WISE highlights the increased commitment to tackle this anti-social crime. Investigations have already and will continue to identify the culprits.”

WISE’s environmental enforcement service operates across the Borough clamping down on dumped domestic and commercial waste seven days a week.

They target those who don’t dispose of their waste in a responsible way, or hand it over to non-registered waste carriers or create eyesores through dropping litter or failing to pick up after their dog’s waste.

Anyone caught fly-tipping can be issued with a £400 Fixed Penalty Notice or if they are observed littering or failing to pick up after their dog’s waste, will be issued with an on the spot £100 fine.

Failure to pay a Fixed Penalty Notice may result in prosecution being brought and a much higher fine being imposed by the Court as well as a potential criminal record.


Rushcliffe Borough Council


The Old School is now a Safe Place

J9

Litter Pick

If you see people picking litter from beside roads and the canal, don't thank 'outside' workers — thank your fellow villagers who are doing it voluntarily.

Nine residents are working around the village, all socially distanced of course.

Filled bags are being collected by Streetwise, and very efficiently. apparently.

Here are some photos by Mel Stanley.


Tony Jarrow


Litter pickers
Litter pickers
Litter pickers
Litter pickers
Litter pickers
Litter pickers
Litter pickers
Litter pickers
Litter pickers

Rest Awhile Here

We are lucky to have lots of footpaths around Cropwell Bishop and sometimes it is nice to break a walk to have a rest – or to have a think.

Well, now there is a new spot for doing just that.

If you take the canal tow path alongside the Old Mill at the Industrial Park, and head towards the bridge over the Colston Road, it awaits you on the left.

As you can see from the photo, it is unique.

Enjoy your walking – and thinking.


Tony Jarrow


Canals seat
Canals seat

Archaeologists Are Still Interested

A further archaeological investigation is going to take place in the field earmarked for development east of Springfield Close.

The County Archaeologist says the work will take place from 3rd Feb and last around 8 days.


Tony Jarrow

Covid Vaccine Has Arrived for Cropwell Bishop Folk

"When will I get my Covid vaccine jab?" is a question everybody is asking.

The good news is that people living in Cropwell Bishop have already started having one. Villager, Joyce, who is over 80 years old, had her jab yesterday.

She had been invited to apply, but soon found that arranging an appointment over the phone was going to involve a very long wait.

She eventually made her booking online, which was more convenient.

Joyce arrived for her appointment at Gamston (near the entrance to Morrisons) yesterday afternoon and, after a short wait, was given her jab.

It was the first day of vaccinations at Gamston and they are using the Pfizer vaccine.

She has been given an appointment for a second jab but warned that this may change. We know that the Government has plans to delay the second jab by up to 12 weeks.

It took about 40 minutes from start to finish and was just like having a flu jab.

It is good to hear that the vaccine is now being given to our neighbours. We now just have to be patient as we wait for our turn — and stay at home, except when impossible.


Tony Jarrow


Archaeologists Are Still Interested

A further archaeological investigation is going to take place in the field earmarked for development east of Springfield Close.

The County Archaeologist says the work will take place from 3rd Feb and last around 8 days.


Tony Jarrow

Stragglethorpe Road

A Cropwell Bishop car driver has suffered tyre damage whilst driving along Stragglethorpe Road.


Tyre hazard

They said:


"Be careful driving on the Stragglethorpe Rd towards the A46 by the bollards and new road markings.

I clipped the flat edge curb stone today. Then discovered cut and deflated tyre!

My husband came to change the wheel, where I had pulled over into a small road on the left.

While putting the spare wheel on, a car stopped, a lovely chap, who lived down this road and said we were the 3rd he had seen this week. One person had punctures front and back.

I have reported the incident to the police and they are reporting to the council."


See the supplied photos.

Tony Jarrow


Tyre hazard